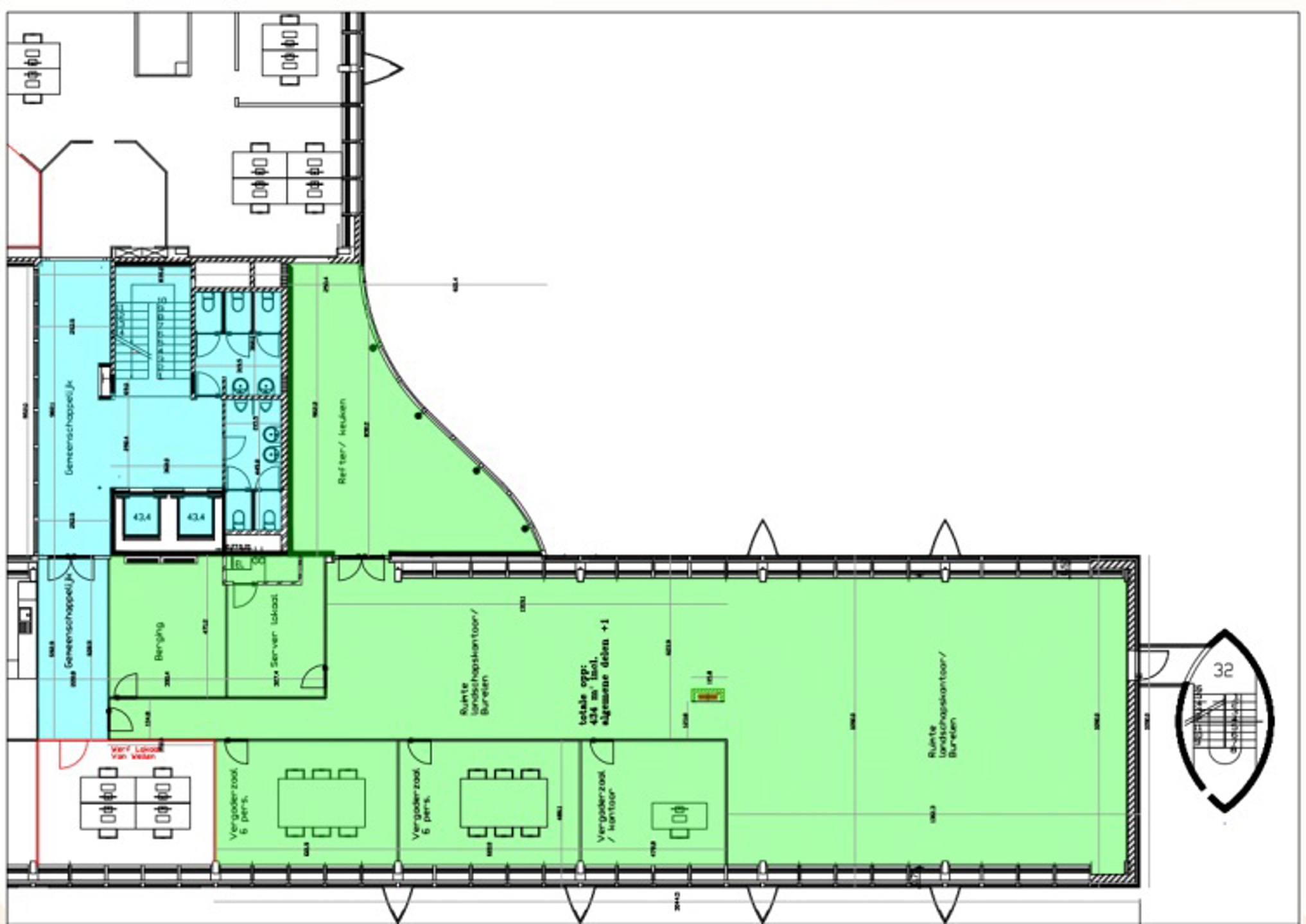
kantoor te huur Zwijndrecht

434 m²
Ref. 6684541

Vraag info of maak een afspraak met Ana Maria Voinescu

Maak een afspraak +32 (0) 472 79 09 77

Nieuwe Weg, 1
2070 Zwijndrecht

5.343,75 EUR/MAAND

Kantoren strategisch gelegen naast de haven van Antwerpen en dicht bij belangrijke wegen (E34 & E19).
Bedrijven reeds aanwezig op de site: Exxonmobile, Ineos, 3M Belgium, enz.
Talrijke faciliteiten (cafetaria, fitness, padel, enz.) en 10 parkeerplaatsen inbegrepen.
Mogelijkheid tot extra parkeerplaats: €600/plaats/jaar.
Exclusief lasten en taksen.