industrieel te koop Fernelmont

2.040 m²
Ref. 6482088

Vraag info of maak een afspraak met Manon Watterman

Maak een afspraak +32 (0) 493 43 59 31

Rue de la Petite Bolette, 1
5380 Fernelmont

2.652.000,00 EUR

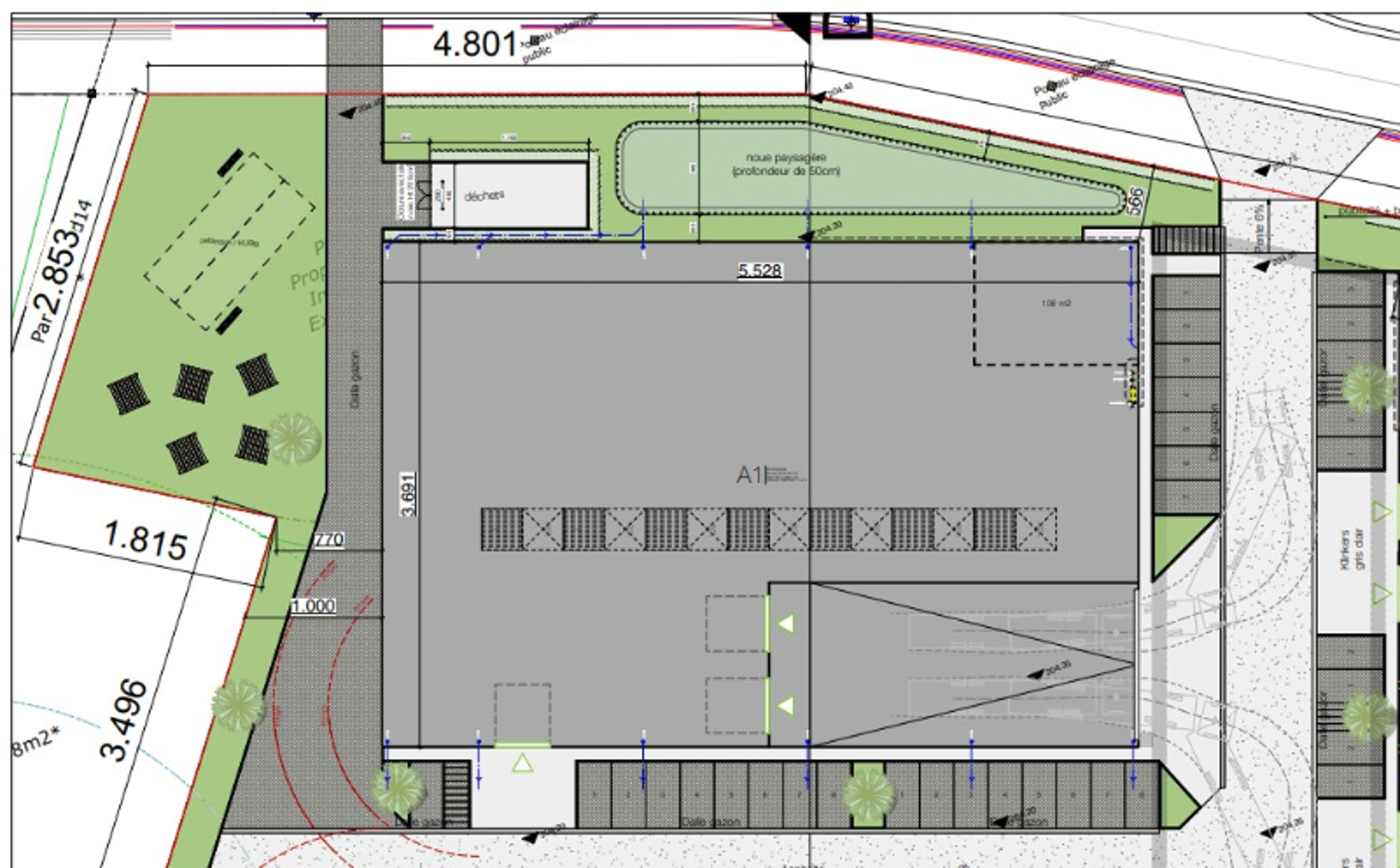
Ontdek een buitengewoon industrieel nieuwbouwproject in Fernelmont, strategisch gelegen langs de autosnelweg voor gemakkelijke toegang en uitstekende zichtbaarheid. Dit pand, met een mogelijke hoogte van 9 meter, wordt volledig op maat van de klant ontworpen om aan diverse industriële behoeften te voldoen. Dit gebouw heeft een oppervlakte van 2.040m², maar er zijn diverse oppervlaktes beschikbaar dewelke variëren tussen 2.000 en 8.500 m², ideaal voor productie, distributie of logistiek.

Gebouwd volgens de huidige normen, biedt dit project moderne faciliteiten en duurzame oplossingen. De strategische locatie garandeert een vlotte verbinding. Mis deze unieke kans niet om uw bedrijf te vestigen op een toplocatie in Fernelmont. 

Neem voor meer informatie contact met ons op via 0472/93.07.06!

Gebouw

Bouwjaar 2024
Ingang - type Elektrische sectionaal poort
Vrije hoogte 9 m

Basisuitrusting

Lift
Wanden Ja
Type verwarming Niet geïnstalleerd
Type elektriciteit Hoogspanningscabine
Keuken - type Niet geïnstalleerd

Technische uitrusting

Belichtingdomes Ja

Aansluitingen

Elektriciteit Ja
Gas Ja

Juridisch veld

Bouwvergunning Ja
Terrein - bestemming Industriegebied

Buitenkant

Regenwaterput Ja

Woonomgeving

Winkels in de buurt Ja
Station in de buurt Ja