kantoor te huur Bruxelles

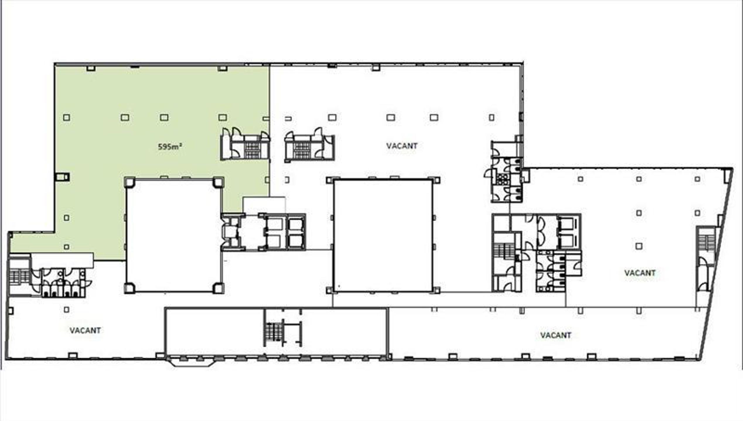
1.388 m²
Ref. 6481250

Vraag info of maak een afspraak met Melissa De Burbure

Maak een afspraak +32 (0) 498 49 64 48

Koningsstraat, 180
1000 Bruxelles

19.668,33 EUR/MAAND epc_d

Kantoren te huur met een ideale ligging in het hart van het centrum van Brussel, tussen de Kruidtuin en het Koninklijk Park.  Onmiddellijke nabijheid van het Centraal Station en het openbaar vervoer. Tal van faciliteiten, winkels, restaurants en cafés in de buurt.
Parking inside: 2.000 €/plaats/jaar.

Gebouw

Bouwjaar 1997

Basisuitrusting

Wanden Ja
Dubbele beglazing Ja
Type airco Ventiloconvectoren
Type verwarming Gas
Ventilo-convectoren Ja

Technische uitrusting

Type schrijnwerkerij Aluminium

Juridisch veld

Bouwvergunning Ja

Woonomgeving

Openbaar vervoer in de buurt Ja
Station in de buurt Ja
Metro in de buurt Ja

Energie

EPC-klasse D
EPC (Kwh/m²/j) 156