kantoor verhuurd Etterbeek

641 m²
Ref. 6448513

Vraag info of maak een afspraak met Bert Cuyt

Maak een afspraak +32 (0) 474 27 57 61
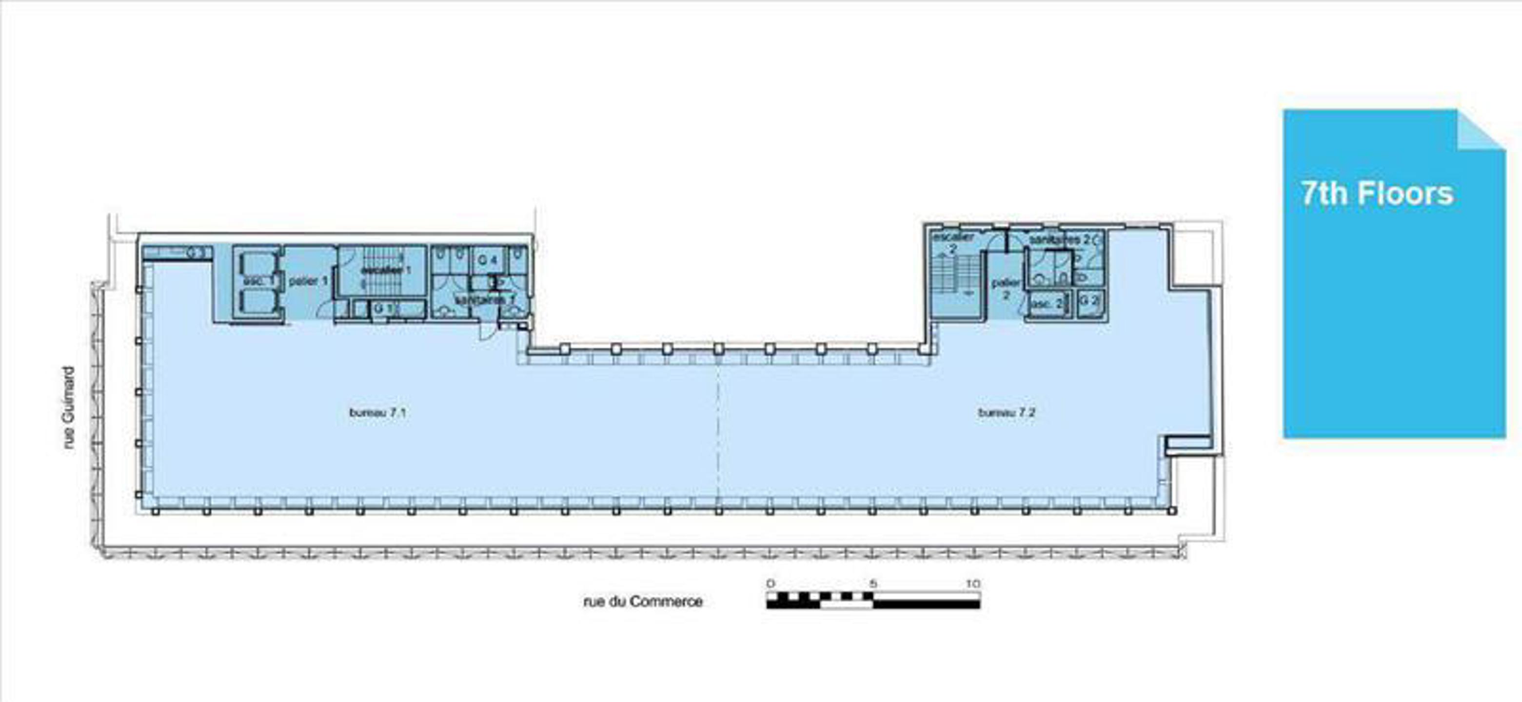
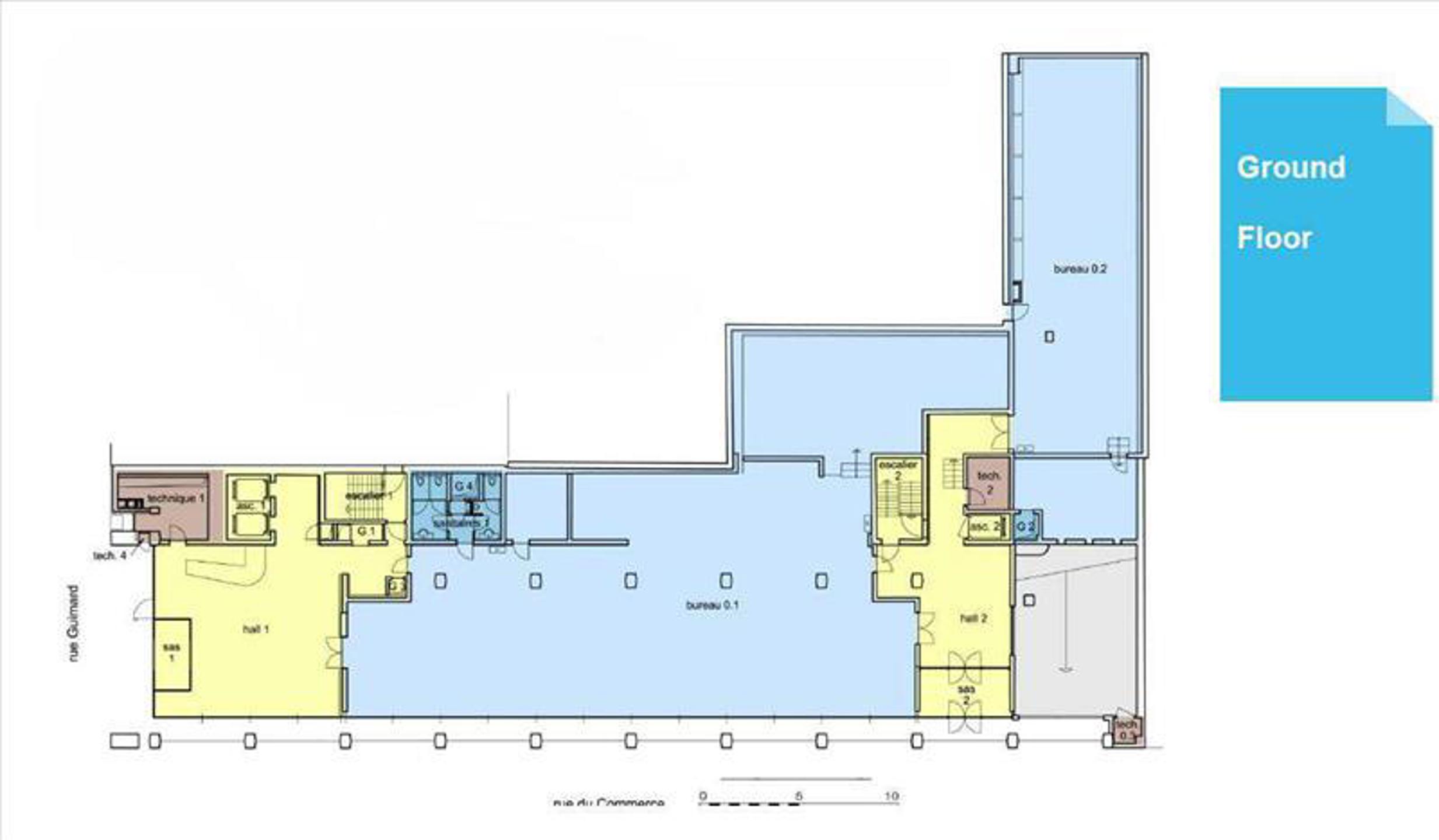
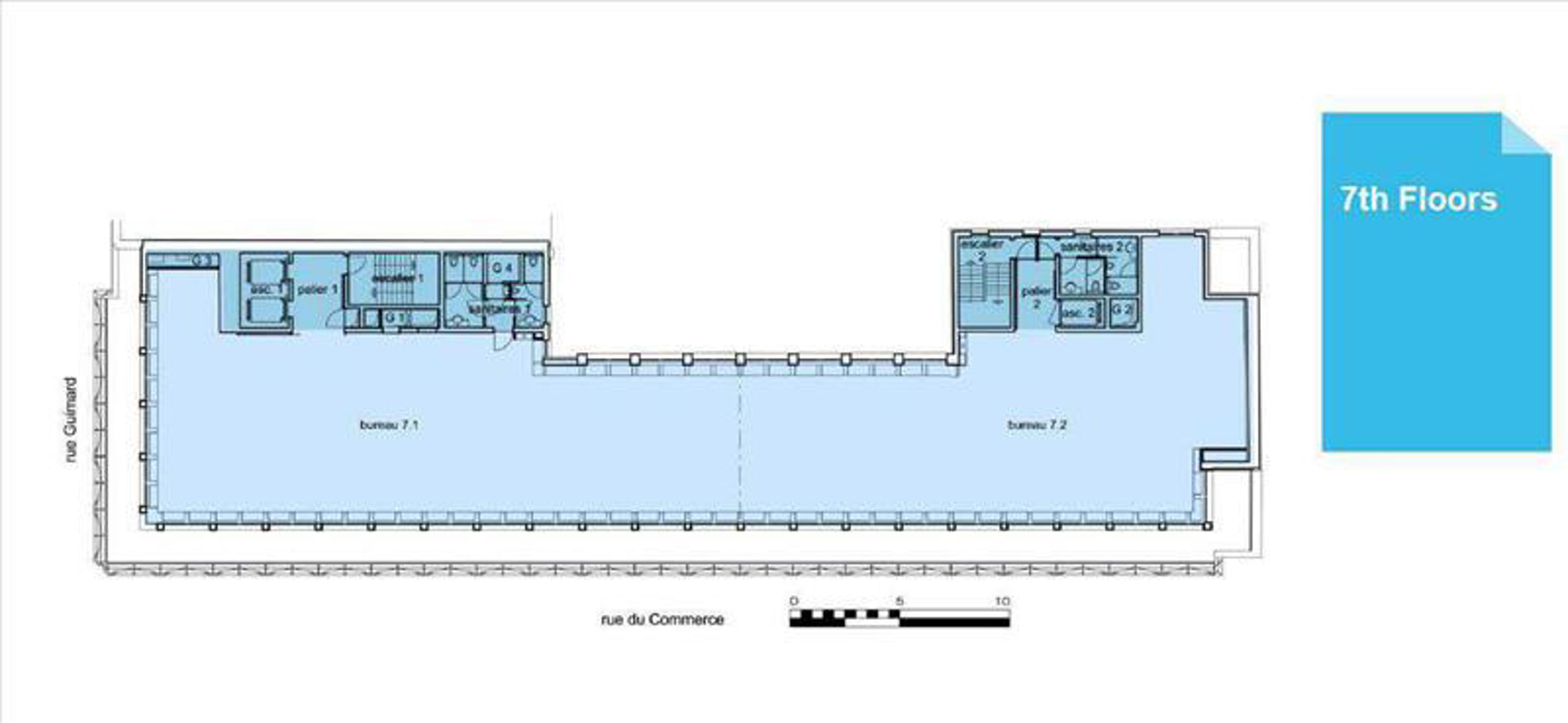
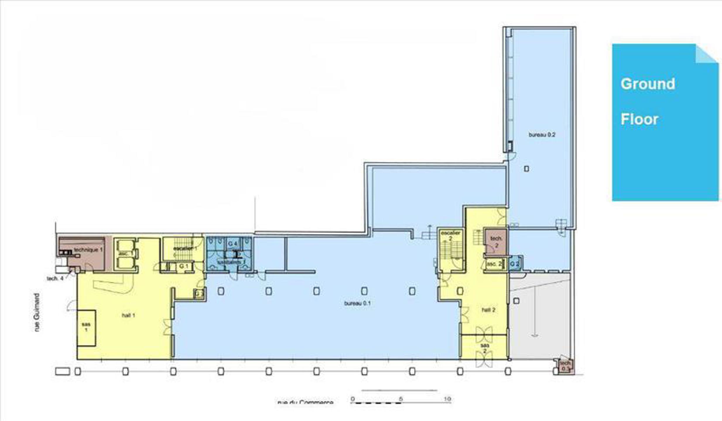
Dit fenomenaal gebouw gelegen in een kantoorzone bevat 7 verdiepingen. U vindt dit gebouw in Brussel, op de zijrand van de binnenring. Op de gelijkvloers bevindt zich een prachtig raam, waar u kan genieten van een zeer mooi uitzicht. Op de zevende verdieping kan u genieten van zeer veel natuurlijke lichtinval. Een aparte archiefruimte is beschikbaar. Makkelijk bereikbaar met het openbaar vervoer (Arts-Loi en Trone metrostation). Het station Montgomery Luxemburg, Brussel-Centraal en Luxemburg bevinden zich op minder dan 1km.

Basisuitrusting

Wanden Ja